******pa集团(中国区)·有限公司官网
当前位置: 首页 >> 工作动态 >> 正文
pa集团官网桥西教工居住小区户型方案公示
2008年10月08日 11:15 wanghua 点击:

各位教职工:

根据学校要求,桥西小区先期建设110m2、130 m2、150 m2三种户型,综合考虑单体建筑与小区整体环境的协调性,设计单位提出了甲、乙、丙三种不同户型的组合方式各两套方案, 现对上述户型的两种方案予以公示,望提出宝贵意见并填写《户型方案选择表》,海甸、城西校区教职工请将《户型方案选择表》送至基建处,儋州校区送至儋州校区管委会汇总后送交基建处,公示日期为2008年10月8日-10月15日。

特此公示。

pa集团官网

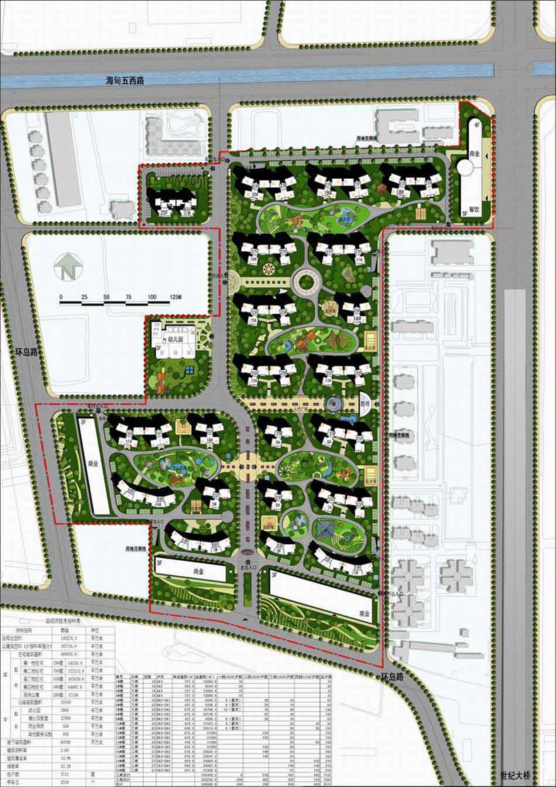
总平面图

pa集团官网

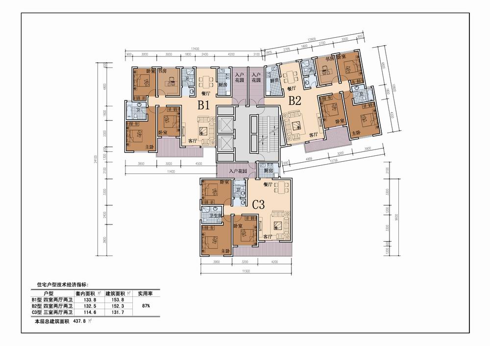
组合平面甲(方案一)

pa集团官网

组合平面甲(方案二)

pa集团官网

组合平面乙(方案一)

pa集团官网

组合平面乙(方案二)

pa集团官网

组合平面丙(方案一)

pa集团官网

组合平面丙(方案二)

户型选择表

下载 户型选择表

  • 基 建 处:0898-66279012
  • 联系地址:pa集团官网基建处
  • 基建处邮箱:hdjjc@hainanu.edu.cn
  • 工程管理科:0898-66279015
  • 计划设计科:0898-66192019
  • 综 合 科:0898-66251693
  • 造价管理科:0898-66155309
  • Copyright © 版权所有 美pa集团(中国区)·有限公司官网